Uitloting koopappartementen Flying Sailer groot succes voor Marken!
Op maandag 10 maart jl. was de uitloting in dorpshuis Het Trefpunt van de 8 koopappartementen die gebouwd worden op het terrein van de Flying Sailer.
Inmiddels zijn er 7 woningen aan Markers verkocht !!
Er is nog één appartement beschikbaar voor Markers.
![]() |
![]() |
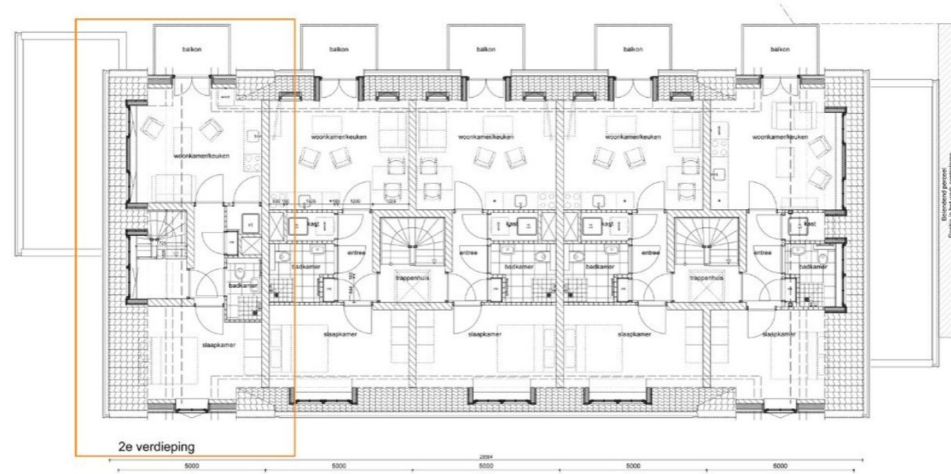
De woning die nog vrij is betreft bouwnummer 11, het appartement op de 2e verdieping. Deze woning heeft geen eigen parkeerplaats. Parkeren in de directe omgeving is vanzelfsprekend wel mogelijk. De koopsom van de woning is € 259.000,00
Voor meer info check: funda
Dit is de laatste kans voor Markers (jong én oud) om met voorrang deze woning te kopen.
Mochten er geen inwoners van Marken belangstelling hebben voor deze woning dan wordt de woning aangeboden aan inwoners binnen de gemeente Waterland.
Heb je interesse wees er dan snel bij en neem contact op met Volkert Makelaardij in Broek in Waterland voor meer details over de woning.
Contactgegevens Volkert Makelaardij:
Volkert Makelaardij
Email:
Telefoon: 0299-479 474







